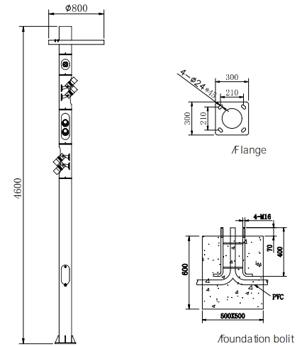
TYHH2120

Biomimetic

HH2120

Applications:

Application : Tree-lined roads, Riverside roads,

Commercial areas and Parks.

Material Characteristics:

Lamp Pole:Stainless steel /Aluminum alloy/Galvanzied

Steel Use anti-corrosion electrostatic spraying

treatment.LED module light source High light

transmittance lens.Can work for 24H;

Note: GB7000.1/GB7000.5

Parameters:

Light source type: LED;

Input: 220V-50Hz;

Rated powe;20W/30W/40W

Color temperature: 3000K/4000K/5700K;

IP65;

Color rendering index: 70/80/90

Scroll to Top